
CASA JARDÍN
RESIDENCIA
ACERCA DE
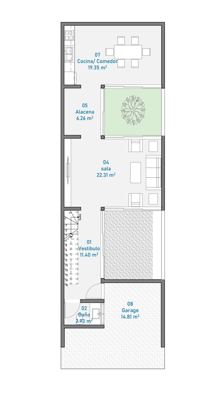
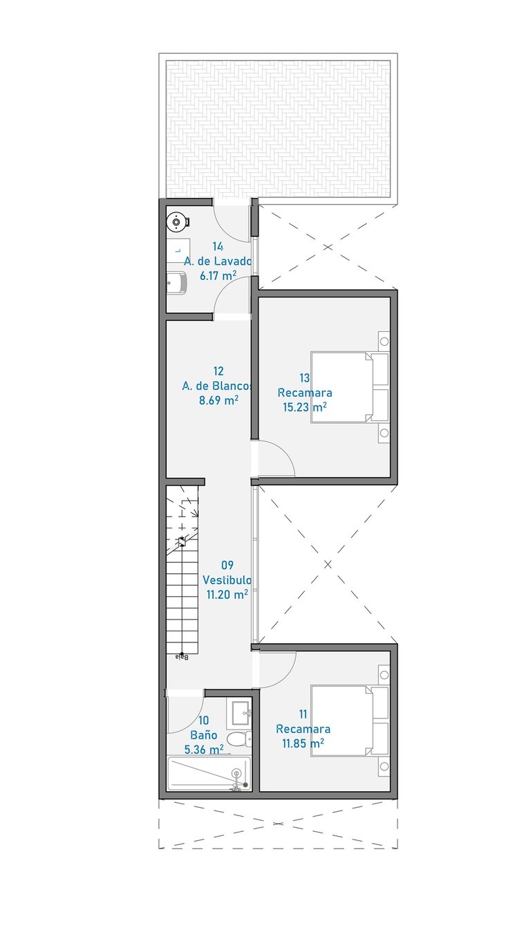
La casa se erige como un refugio de serenidad y elegancia, donde la distribución de sus espacios gira en torno a dos encantadores jardines interiores que actúan como el corazón del hogar.
AÑO
2022
UBICACIÓN
La Cruz, Elota, Sinaloa
CATEGORÍA
RESIDENCIA
M² CONSTRUIDOS
135.56 M²


















